首页 > 新闻中心 > 服务支持<

服务支持
绝缘靴与绝缘手套的耐压安全测试
时间:2019-09-28

电气安全工具性能测试的意义

电气安全用具是保证电气工作者安全操作必不可少的辅助工具,可防止触电、弧光灼伤和高空摔跌等伤害事故。正确使用合格的电气安全用具是保证人身安全的基本条件之一。

电力部门购买回来的电气安全用具不管是新的还是使用过一段时间的,定期做一个质量检测试验还是很有必要的,不能只检查外观觉得是好的就行。比如:绝缘用具类的耐压试验、高空安全绳索做拉力试验等。下面就以非常实用的绝缘靴手套耐压试验装置为例,讲解绝缘靴和绝缘手套的耐压安全测试。


 

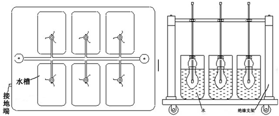
绝缘手套、绝缘靴耐压试验

按规定定期对绝缘手套和绝缘靴进行交流耐压试验,可以一步鉴别其绝缘情况,确定是否能作为绝缘安全用具。试验前,在被试绝缘手套或绝缘靴内装满水,并悬吊在盛满同样水的容器内,手套内、外的水面,不能高于手口以下5cm的位置,并要求露出水面的部分保持干燥清洁。外观检查不合格 的绝缘手套,禁止用作绝缘安全用具。

 

按试验要求设置好目标电压、耐压时间、泄漏电流值后。按下测试按钮,显示屏上的高压电压栏应有高压电压显示(kV),同时显示6路的泄露电流值(mA)。

在升压的过程中报警蜂鸣器会工作发出响声,表示此时正在升压,请密切注视电压值和电流值。当电压升至设定电压值时,升压就会停止,此时就会自动计时,到时间后就会自动降压。

注意观察泄漏电流值,如有绝缘靴(手套)绝缘性能下降,此时该泄漏电流将有所指示。试验过程中如任何一路电流指示超出被试品规定的范围,系统就会自动切断高压电源,关掉电源开关找出相关原因再进行试验。

该绝缘靴手套耐压试验装置采用先进的微电子处理技术,全部使用过程可提前进行设置,全中文界面,操作简单明了。全部测试项目设定后自动进行测试,无须人工干预。

 

 

 

 

 

 

 

 

销售热线

  • 400-046-1993全国统一服务热线
  • 销售热线:027-83621138
  • 售后专线:027-83982728
  • 在线QQ咨询: 149650365      
  • 联系我们

 

增值服务

  • 三年质保,一年包换,三个月试用

 

 

 

 


 

版权所有:湖北中试高测电气控股有限公司 鄂TCP备12007755号